APPARTEMENT T3 A VENDRE - LYON 6EME ARRONDISSEMENT - 62 m2 - 275 000 €
Appartements T3 à vendre Lyon 6ème de 62m2
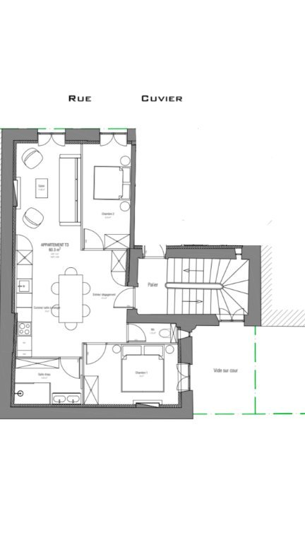
Plateau de 62 m² à vendre, situé au 1er étage d'un immeuble sans ascenseur, offrant un fort potentiel de transformation selon vos envies et vos besoins.
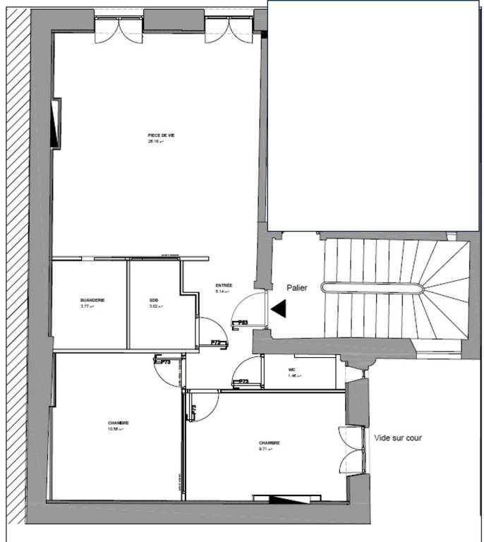
Ce plateau brut peut être aménagé en appartement de type T3 avec deux chambres, ou en T2 bis avec un grand espace de vie et un bureau ou chambre d'appoint. Il constitue une excellente opportunité pour un projet de résidence principale sur mesure ou pour un investissement locatif.
Travaux à prévoir: aux alentours de 70 000euros en fonction des prestations.
Le bien est vendu avec un compteur d'eau individuel et un compteur électrique, ainsi qu'un raccordement aux eaux usées déjà en place, facilitant ainsi le démarrage des travaux. La configuration permet une grande liberté d'aménagement intérieur, avec la possibilité d'optimiser les volumes et la luminosité selon votre projet.
Des travaux de rénovation complète sont à prévoir, incluant l'isolation, les cloisons, les sols, la cuisine et la salle de bain. Cela représente une opportunité idéale pour créer un bien entièrement personnalisé, conforme aux dernières normes de confort et de performance énergétique.
À noter que d'autres plateaux déjà rénovés dans l'immeuble, situés aux 2ème et 3ème étages, présentent des DPE projetés en classe C ou D selon les travaux réalisés, ce qui laisse entrevoir un bon potentiel d'amélioration énergétique pour ce lot.
Situé dans un environnement agréable, ce bien bénéficie de la proximité des commerces, transports et commodités, tout en offrant le calme d'un étage intermédiaire.
Ce plateau séduira aussi bien les particuliers en quête d'un projet sur mesure que les investisseurs souhaitant valoriser un bien avec travaux et optimiser sa rentabilité.
Les informations sur les risques auxquels ce bien est exposé sont disponibles sur le site Géorisques : www.georisques.gouv.fr
Réf : 453
Caractéristiques
Copropriété
- soumis au statut de la copropriété : oui
- copropriété : 8 lots
- montant moyen annuel des charges courantes : 1 400 €/an soit 116,67 €/mois
- procédure en cours : non
Informations financières
- honoraires à charge : du vendeur
Imprimer la ficheVoir nos prestations et tarifs
Votre conseiller pour visiter ce bien
CITI IMMO
Tél : 04.26.78.64.64
Contactez-nous via ce formulaire
Pour les biens à la vente, merci de contacter notre agence de transaction CITI IMMO au 09.88.44.77.00 ou en complétant le formulaire.
Pour les biens à la location, vous pouvez contacter le 04.72.83.07.17 ou compléter le formulaire ci-dessous.
Ecoles, transports, sorties et commerces sur LYON 6EME ARRONDISSEMENT (69006)
Lyon 6eme Arrondissement est une ville de 52 007 habitants. Côté immobilier, les habitations sont réparties en 0 % de maisons et 100 % d'appartements.
En savoir plus sur Lyon 6eme Arrondissement


